
定制:
执行器的定制是为了配合您的实际需求。不管您有怎样的技术要求, 您可以告知我们,我们的工程师可以最大限度的按照 您的要求给您配置最适合的执行器产品。JIMI 品牌执行器产品线可以广泛定制,并且在定制特殊执行器方面非常有经验,也愿意配合您的要求来特殊定制。
电位计反馈:
电位计提供一个模拟量输出信号,可以用来确定伸缩管的位置。在断电和再通电情况下,电位计会记住该位置。
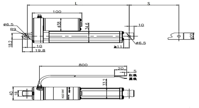
标准产品安装尺寸:
Stroke: 30~300mm L =S+105mm Stroke: 300~500mm L =S+120mm
Stroke: 500~600mm L =S+130mm 图 纸 安 装 孔 向 为 正 90 度 , ( 标 准 )
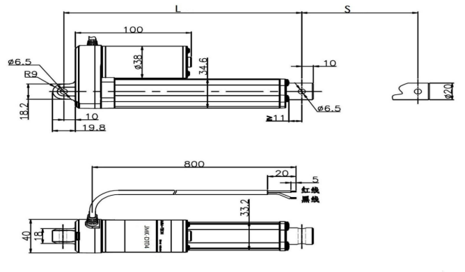
带电位计产品安装尺寸:
Stroke: 30~300mm L =S+135mm Stroke: 300~500mm L =S+150mm
Stroke: 500~600mm L =S+160mm 图纸安装孔向为正 90 度,(标准)
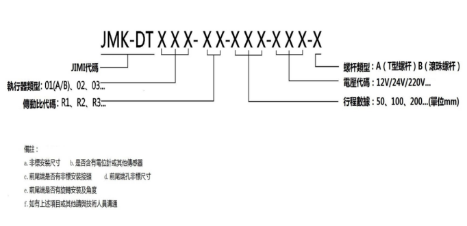
如何选型订购:
